Type A appartement | Kavel 1.1.2 | Nieuw Bergen Eindhoven | Gebouw: INDIGO | Nieuwbouw schilderwerk | Schilder Eindhoven
100% Veilig afrekenen
Type A appartement | Kavel 1.1.2 | Nieuw Bergen Eindhoven | Gebouw: INDIGO | Nieuwbouw schilderwerk | Schilder Eindhoven
✅ Professioneel binnenschilderwerk voor de Nieuw Bergen Eindhoven – Appartement 1.1.2 Type A gebouw INDIGO
Nieuw appartement gekocht in gebouw Indigo Nieuw Bergen te Eindhoven – Type A – Kavel 1.1.2? Laat jouw nieuwe appartement professioneel afwerken met hoogwaardig binnenschilderwerk van de Schilder Plus Eindhoven!
Wij zijn dé specialist in nieuwbouw binnenschilderwerk in Eindhoven en omgeving. Of het nu gaat om het strak afwerken van muren of plafonds in jouw gloednieuwe appartement: wij zorgen voor een perfecte oplevering met duurzame materialen en oog voor detail.
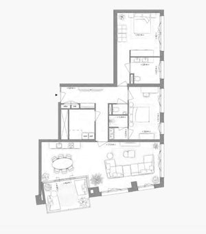
Specificaties – Type A – Kavels 1.1.2 gebouw Indigo:
• Royale woning
• Verdieping: 1
• Woonoppervlakte: ca. 123 m²
🛠️ Onze schilder/stukadoors BASIS diensten voor de Nieuw Bergen Eindhoven:
• Aanbrengen van een DUNPLEISTER op alle binnenwanden* (behangklaar = niet schilder klaar!)
• Voorlijmen van alle binnenwanden en plafonds.
• Openstaande naden en gaten dichten, 1x voorspuiten waarna 1x volledig afwerken
in een lichte kleur RAL 9010 (of andere lichte kleur) met een Sikkens Prof mat schrobklasse 1.
Uitgesloten onderdelen:
• Binnendeuren en kozijnen, plinten, trappen, achterwand keuken & gevelkozijnen
Optionele onderdelen:
• Plinten
• Achterwand keuken
• 2 kleuren 1 voor plafond en 1 voor de wanden
Voorwaarden – Turnkey Schilderconcept
Wij werken volgens een turnkey schildersconcept: Wij klaar? Dan kun jij de verhuisdoos direct uitpakken.
Om onze kwaliteit en planning 100% te waarborgen, geldt de volgende voorwaarde:
👉 Alle werkzaamheden van andere aannemers (zoals vloeren, plinten, keuken en badkamer) dienen volledig afgerond te zijn voordat wij starten.
Zo leveren wij een perfect eindresultaat af, zonder verstoringen of vertragingen.
🎯 Waarom kiezen voor de Schilder Plus Eindhoven?
• Gespecialiseerd in nieuwbouwprojecten zoals de Nieuw Bergen gebouw Indigo
• Lokale vakmensen met jarenlange ervaring
• Scherpe tarieven
• Oplevering binnen de afgesproken planning
Zeker zijn van een plekje in de agenda van de Schilder Plus?
Voor slechts €250,- kun je alvast een voorkeursdatum reserveren voor jouw binnenschilderwerk, zonder dat je direct de volledige opdracht hoeft vast te leggen. Zo ben je verzekerd van tijdige planning, geheel op basis van jouw voorkeur.
⚠️ Let op:
• Kies je er uiteindelijk voor om het schilderwerk door een andere partij te laten uitvoeren? Dan is het reserveringsbedrag helaas niet restitueerbaar.
• Gaat de opdracht gewoon door met Schilder Plus? Dan wordt het bedrag van €250,- volledig in mindering gebracht op de eindfactuur.
🔍 Zoek je een schilder in Eindhoven voor jouw nieuwbouwappartement in de Nieuw Bergen gebouw Indigo? Met de Schilder Plus Eindhoven kies je voor kwaliteit, betrouwbaarheid én een vlekkeloos eindresultaat.
* exclusief wanden rondom technische installaties







